Historic Preservation Demolition Review Bylaw
Protecting Wellesley’s Character and Encouraging Smart, Sustainable Growth.
Protecting Wellesley’s Character and Encouraging Smart, Sustainable Growth.
The Town of Wellesley’s Public School Facilities Committee recently released its study that was commissioned to study long-term options for the Town’s elementary schools. The study contains specific recommendations for Hardy, Hunnewell and Upham, including renovating Hunnewell and closing...
In 2014, the Wellesley Historical Commission extended the cutoff date for the plaques to 1914, thus permitting the placement of plaques on all houses and buildings in Wellesley constructed 100 or more years ago.
A group of Standish Road neighborhood property owners recently submitted a petition to the Wellesley Historical Commission as required by Article 46A of the Town Bylaws in order to initiate the designation of the “Standish Road Neighborhood Conservation District.” As...
The Beebe House was a historic 19th century residence that was located at 53 Grove Street. The history and significance can be read about in an April 4, 2013, “Historic Assessment and Recommendation” document prepared by the Wellesley Historical...
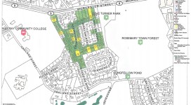
The Property 135 Great Plain Avenue is a unique parcel of land in Wellesley that may not be known to many by its address, but that all residents have probably driven past on their way to the Town RDF or...
Here are some of the preservation projects that the Wellesley Historical Commission has worked on in the past: Wellesley Hills Branch Library Wellesley Farms Train Station Katherine Lee Bates House Elm Park and the Clock Tower Walnut Street Fire Station...